© 2023 Arch. Andrea Giraudo | Tutti i diritti riservati | P.IVA 01203780083 | via Valle del Ponte, 68 Sanremo | andrea_giraudo@archiworldpec.it
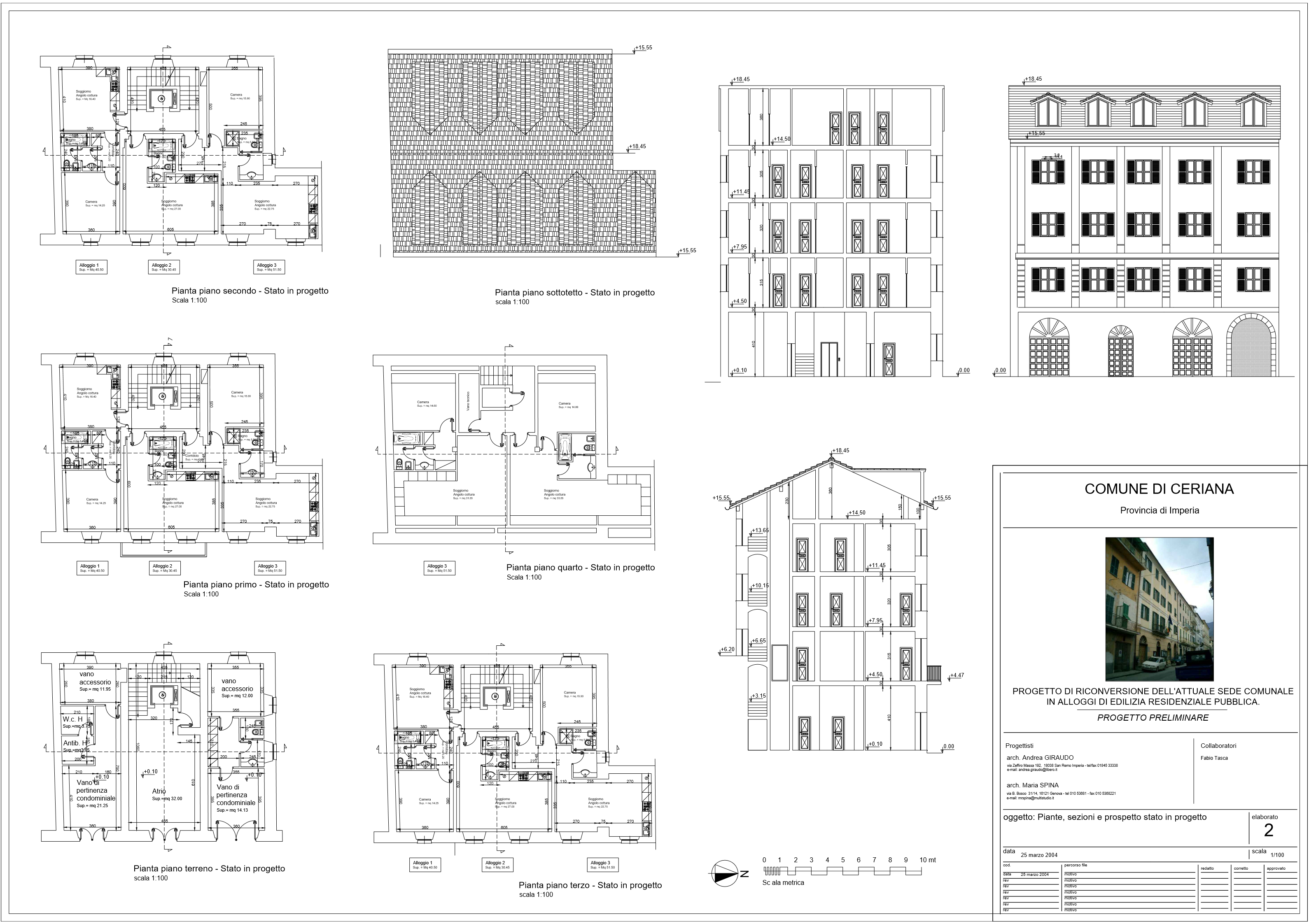
Programma complesso di recupero nell'ambito del centro antico - "Contratto di Quartiere II"




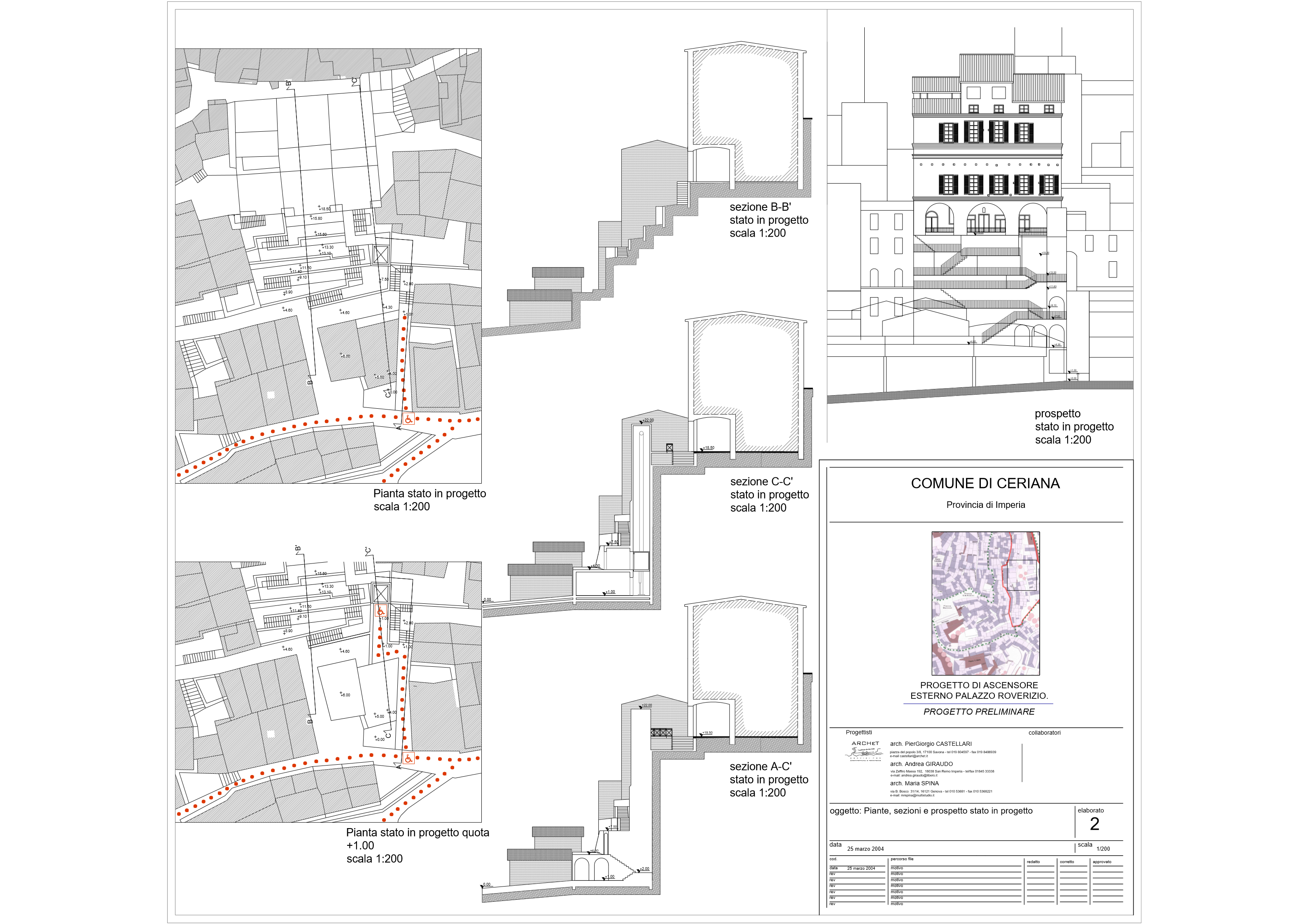
Ascensore esterna Palazzo Roverizio di Roccasterone


Stato in progetto
Stato di fatto

Stato in progetto


Stato in progetto
Stato di fatto

Stato di fatto - Stato in progetto
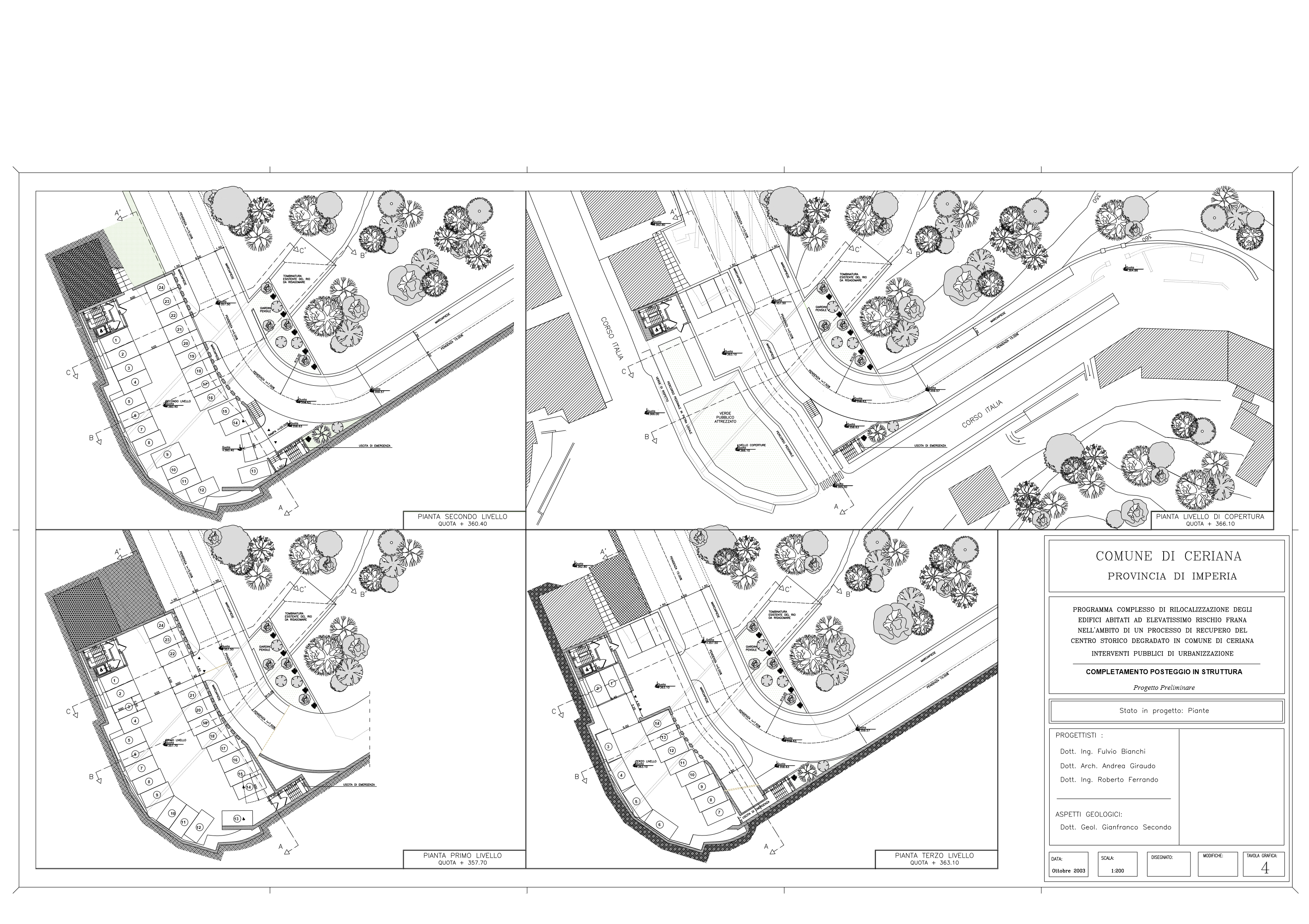
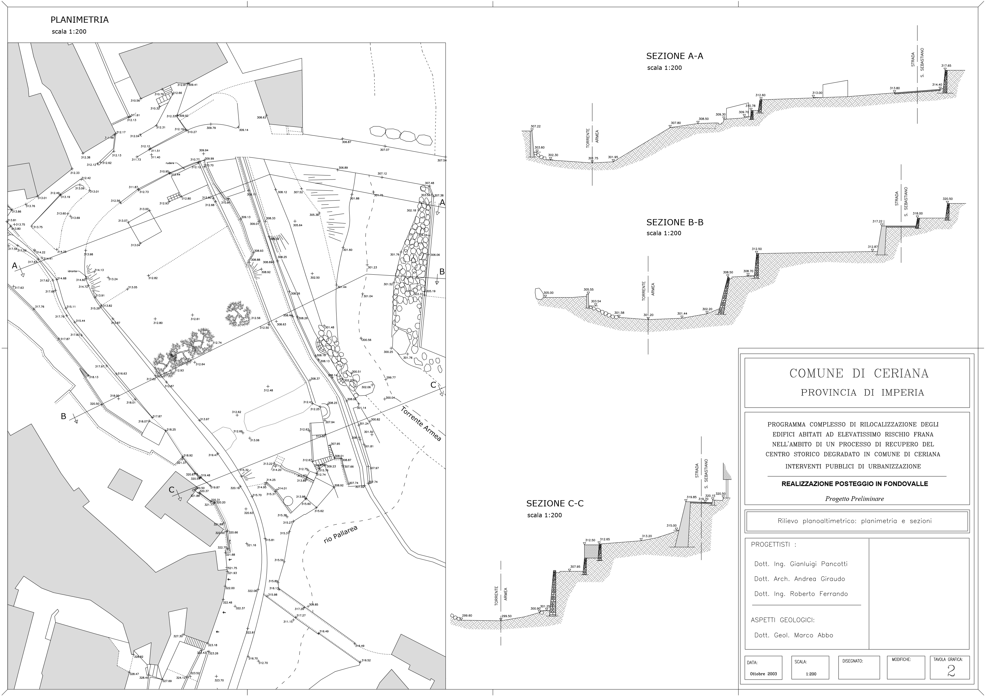
Posteggio in struttura








© 2023 Arch. Andrea Giraudo | Tutti i diritti riservati | P.IVA 01203780083 | via Valle del Ponte, 68 Sanremo | andrea_giraudo@archiworldpec.it